Retour au listing N° réf 5997

duplex à vendre - 73.87m² - 2 chambres

Prix : 325 000 €
73.87 m²
2
1
1

DESCRIPTION DU BIEN

russange
*** NOUVEAUTÉ***

MY LOFT LUX REAL ESTATE ET MY LOFT FRANCE REAL ESTATE vous présentent :

A RUSSANGE, idéalement située à 2 minutes seulement de la Frontière Luxembourgeoise ( ESCH/ALZETTE et BELVAUX) dans une Résidence en FUTURE CONSTRUCTION composée de 9 LOTS avec ascenseur, un très bel APPARTEMENT – DUPLEX ( N°8) situé au 1er + 2ième étage.

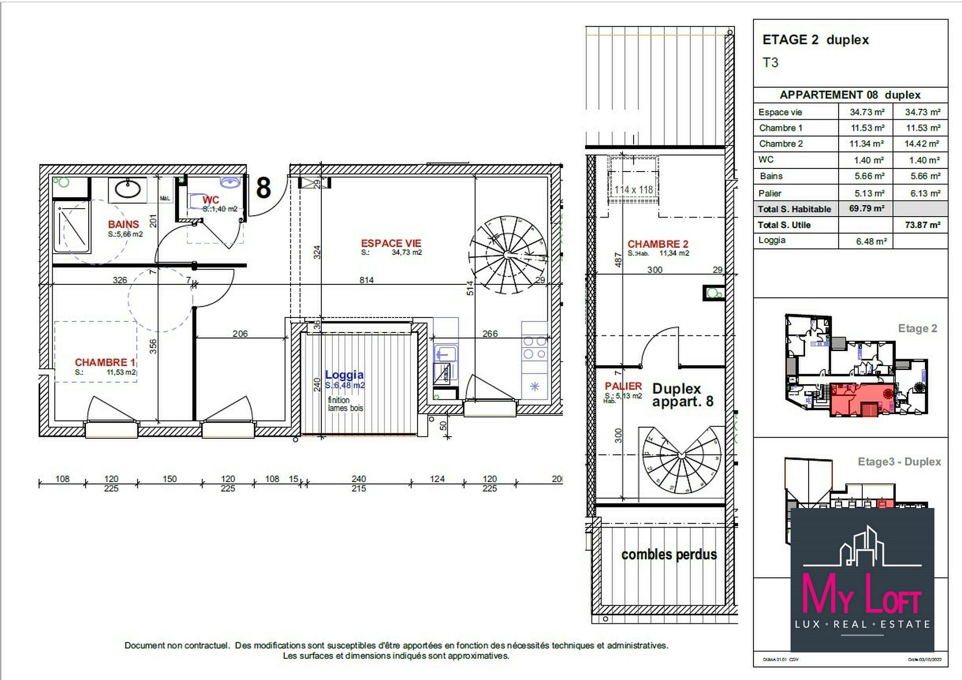
Cet appartement-duplex N°8 d'une superficie utile de +/- 73,87 m2 se compose comme suit :
- ESPACE DE VIE : +/- 34,73 m2
- CHAMBRE 1 : +/- 11,53 m2
- CHAMBRE 2 : +/- 14,42 m2
- WC SÉPARÉ : +/- 1,40 m2
- SALLE DE BAINS : +/- 5,66 M2
- PALLIER : +/- 6,13 M2
- BALCON EXPOSITION EST : +/- 5,81 m2

ANNEXES INCLUS DANS LE PRIX :
- 1 EMPLACEMENT INTERIEUR EN RDC. Possibilité d'acquérir en option un second emplacement ou un garage box fermé.
- Buanderie, local à vélos/poussettes, et poubelles dans les communs

NB : PRIX FIXES GARANTIS PAR LE PROMOTEUR.

Cette future construction de qualité sera dotée des équipements et installations suivants :
- Chaudière à gaz individuelle dans chaque appartement
- Chauffage au sol
- Portes-fenêtres et fenêtre PVC avec coupure thermique et double vitrage,
- Volets roulants motorisés,
- VMC mécanique
- Revêtement des sols au choix de l'acquéreur parmi un panel proposé par le promoteur
- Isolation phonique et thermique de haute qualité
- Contrôle d'accès avec caméra
- Accès PMR.

Garantie Financière d'Achèvement (GFA)
Garantie Dommage Ouvrage 10 ans (DO)
Frais de notaire réduits +/- 2,5%
F.A.I inclus à charge vendeur.

Consultez aussi les autres lots que nous vous proposons à la vente dans cette résidence.
APPARTEMENT N°1: 72,01 m2, 2 CH + Balcon 6,44 m2 - PRIX : 332.000 €
APPARTEMENT N°2 : 59,29 m2, 2 CH + Balcon 5,81 m2 - PRIX : 275.000 €
APPARTEMENT N°3: 55,97 m2, 2 CH+ Loggia 4,05 m2 - PRIX : 260.000 €
APPARTEMENT N°4: 47,43 m2, 1 CH+ Loggia 6,48 m2 - PRIX : 220.000 €
APPARTEMENT N°5: 72,01 m2, 2 CH+ Balcon 6,44 m2 - PRIX : 332.000 €
APPARTEMENT N°6: 59,29 m2, 2 CH+ Balcon 5,81 m2 - PRIX : 275.000 €
APPARTEMENT/DUPLEX N°7: 83,35 m2, 3 CH+ Balcon 5,81m2 - PRIX : 362.000 €
APPARTEMENT/DUPLEX N°8: 73,87 m2, 2 CH+ Loggia 6,48 m2 - PRIX : 325.000 €
APPARTEMENT/DUPLEX N°9: 113,50 m2, 3 CH+ Balcon 6,44 m2 - PRIX : 399.000 €


Pour plus de renseignements sur le projet, n'hésitez pas à nous contacter :
MY LOFT LUX REAL ESTATE : (+352) 26 65 08 17
MY LOFT FRANCE REAL ESTATE : (+33) 03 72 52 05 24
Et nous conviendrons alors d'un RDV en notre agence, chez vous ou sur le terrain pour une présentation détaillée du projet et des plans techniques y afférents.

CARACTÉRISTIQUES DU BIEN

Confort
Ascenseur
Installation handicapés
Volets électriques
Extérieur
Balcon
Informations
Référence 5997
Nombre de pièces 4
Nombre de chambres 2
Surface 73.87 m²
Parking
Parking souterrain 1
Pièces
Cuisine
Cuisine indépendante
Séjour
Salles de bain 1
Hall
Sécurité
Porte blindée
Parlophone
Vidéophone

LOCALISER LE BIEN

L'adresse exacte de ce bien n'est pas renseignée

Ce bien
vous intéresse ?


Demander informations sur le bien

Partager l'annonce